Jump to content
Click here to check out this refrigerator troubleshooting booklet.

FAQs | Repair Videos | Academy | Newsletter | Contact


Appliance Repair Tech Tips

  • entries
    257
  • comments
    839
  • views
    558,156

How do Direct Spark Ignition (DSI) Control Board Algorithms React to Open Gas Valves?


A tech here in the Appliance Repair Tech Help forum recently ran into a conundrum: the range he was working on had an open bake valve, but there was also no voltage going to either the bake or the broil valve from the DSI control board. So is this just an issue with that open valve, or does the board need to be replaced as well?

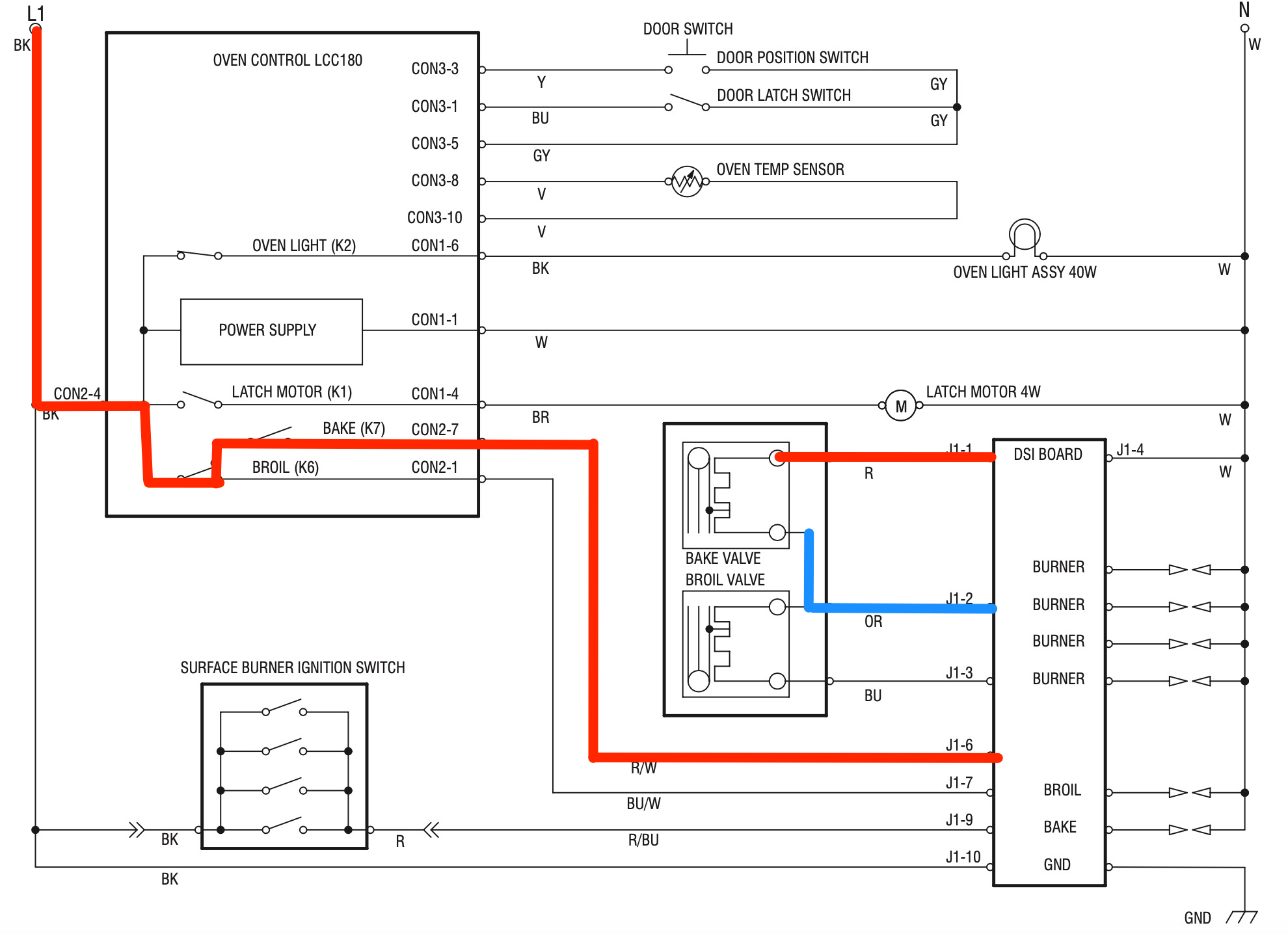
To find our answer, let's first look at the schematic for this range.

IMG_0331-3.png

Circled, from left to right, are the bake and broil relays, the bake and broil valves, and the DSI board.

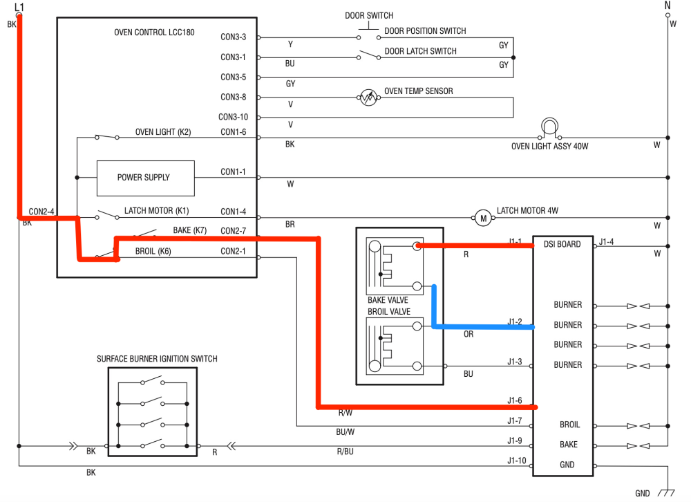
Let's now take a look at how these circuits are supposed to work together when a bake cycle is initiated:

IMG_0331-2.png

As you can see, the bake relay closes, which sends Line voltage to the DSI board. That voltage is not the voltage supply for the DSI board -- it's a signal. The DSI board is programmed to respond to the presence of Line voltage at J1-6 by supplying power to the bake valve. That's a decision the board makes based on its algorithm -- the set of instructions that have been programmed into it by the appliance's engineers.

Broil works similarly:

IMG_0331.png

Same principle -- voltage present at J1-7 tells the DSI board to energize the broil valve.

So that's how the DSI system is supposed to work. But in our tech's case, there are two problems: the bake valve is electrically open, and the DSI board isn't supplying voltage to either valve. Even when broil is activated, the board won't supply power to the broil valve, despite the fact that there's no issue with that valve.

The valves' circuits are in parallel, not in series, so an open in one valve doesn't affect the other's circuit. So is this just a rare case where you have two problems at once (both the bake valve and the DSI board), or could there be something more going on here?

Take a look at this part of the tech sheet:

IMG_0330.png

Aha! What that little, easy-to-miss note is telling us is that the DSI board is programmed to check both valves on startup. Basically, the DSI board does its own continuity check of both valves at the start of a cycle, regardless of whether it's bake or broil. If it detects an open in even just one valve, then it won't energize either valve.

Remember the board's algorithm that I mentioned earlier? This valve health check at startup is another part of the DSI board's programming. It's exactly these kinds of tidbits that can make a massive difference to your troubleshooting. Without knowing this, our tech might have replaced a perfectly good DSI board.

When you're dealing with a control board that doesn't seem to be behaving, that's your cue to comb the service docs for information about the board's algorithm.

Want to get in on the action? Join the Brotherhood of Techs at Appliantology.

  • Appliantology.org is a cultivated, private community of techs.
  • Get solid tech advice from working, professional techs and business owners.
  • Avoid the endless noise and guesswork thrown at you from groups on social media.
  • Download the service manuals, tech sheets, and service bulletins you need to git 'er done.

Join the Brethren in the Craft right now with our membership options at Appliantology and see how it can help you in your business starting today.

  • Like 7
  • Thanks 1

1 Comment


Recommended Comments

Patrick.j

Posted

Great information.  thanks 

  • Like 1
×
×
  • Create New...